logo

Vi har just nu störningar i vår telefoni vilket kan innebära att samtal inte kopplas fram. Om du inte kommer fram på telefon är du välkommen att chatta med oss istället.

EskilstunaVästra Åsgatan 17

På denna lägenhet erbjuds fysisk visning!

Hyresrabatt

Just nu ger vi dig rabatt på månadshyran när du tecknar ett avtal på denna lägenhet. Ordinarie hyra är 11485 kr/månad men med vår rabatt så blir din hyra i stället 2500 kr/månad lägre under de första 3 åren. Erbjudandet gäller nya kunder till Willhem.

Om lägenheten

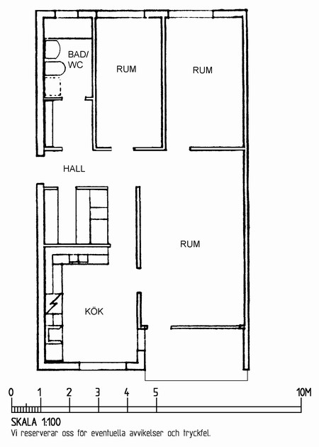
Välkommen till en modern trerummare som renoverade år 2019!
Lägenheten är ljus med vita väggar och ekparkett är genomgående i hela lägenheten. Köket är modernt med vita köksluckor, diskmaskin och induktionshäll. Badrummet är helkaklat och är utrustat med wc, handfat och badkar. Badrummet är även förberett för installation av egen tvättmaskin. Lägenheten har även en utgång till en härlig balkong.

Närområde

Från lägenheten har du nära allt du behöver - mataffärer, centrum och Mälardalens högskola är allt inom bekvämt gångavstånd. Dessutom är det lätt att ta sig runt med närheten till tåg- och bussförbindelser. 5 minuters promenad till Eskilstuna centralstation, 3 minuters promenad till Fitness24seven, 4 minuters promenad till Ica Supermarket Nyfors och 10 minuters promenad till närmsta vårdcentral.

Parkering

I huset finns det möjlighet att hyra garageplats i varmgarage. Lediga platser hittar du på Willhem.se

Övrigt

Tv-paketet Lagom, värme och vatten ingår i hyran. Internet och hushållsel tecknas av hyresgästen. Till lägenheten hör ett källarförråd.

Välkommen med en ansökan!

Lägenhetsöversikt

Hyra
8 985 kr
Area
76,9 m²
Antal rum
3 rum & kök
Våning
1
Balkong
Ja
Hiss
Ja
Tillträde
2026-7-31

Hitta hit